PORTÁLOVÉ ŽERIAVY EVPE A ZVPE

PRODUKTY | PORTÁLOVÉ ŽERIAVY | PORTÁLOVÉ ŽERIAVY EVPE A ZVPE

Portálové žeriavy DEMAG môžeme často integrovať do stávajúcich výrobní a vnútropodnikových logistických prevádzok bez veľkej náročnosti na konštrukciu.

Podstatný rozdiel oproti poloportálovým žeriavom spočíva v integrovanom kývacom stĺpe, ktorý vyrovnáva pohyby. Žeriavy jazdia po koľajnicách na úrovni zeme, nie je nutná konštrukcia žeriavovej dráhy. Portálové žeriavy sú uprednostňované na vonkajších skladových plochách a prekladiskách.

 

  • Použitie ako nezávislé jednotky – bez dodatočných žeriavových dráh
  • Voliteľné ovládanie pomocou závesného ovládača, alebo diaľkového ovládania
  • Prívod energie je zaistený káblovým bubnom, ktorý je namontovaný na stĺpe
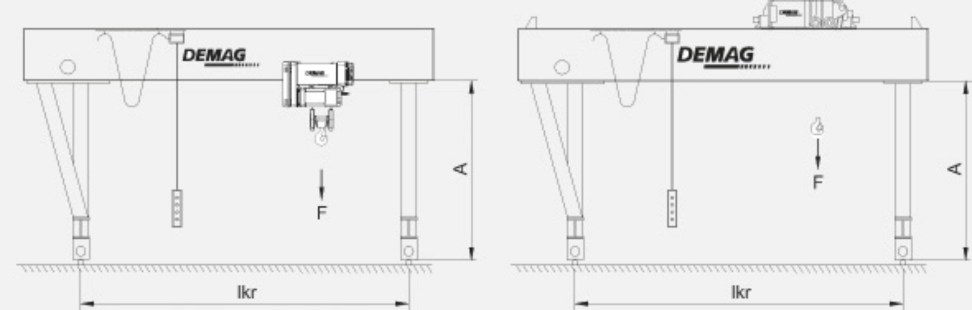
  • Dvojnosníkové portálové žeriavy s priechodzou mačkou, plošinou pre údržbu a výstupným rebríkom
  • Možné vybavenie 2 kladkostrojmi, alebo 2 mačkami
  • Koľajové kliešte pre zaistenie žeriavu na ochranu pred poškodením pri búrke

 

Technické údaje

 

EVPE
Nosnosť  12,5 t
Rozchod do 30 m
Konštrukčná výška 4, 6, 8, 10 m
Rýchlosti
Pojazd žeriavu do 40 m/min
Pojazd mačky do 30 m/min
Zdvíhanie/spúšťanie do 12,5 m/min
Plynulý pohyb možný v troch osách

 

ZVPE
Nosnosť  50 t
Rozchod do 35 m
Konštrukčná výška 6, 8, 10, 12, 14, 16 m
Rýchlosti
Pojazd žeriavu do 40 m/min
Pojazd mačky do 30 m/min
Zdvíhanie/spúšťanie do 12,5 m/min
Plynulý pohyb možný v troch osách

Súbory na stiahnutie

Scroll to Top

Niektorí z klientov

Volkswagen Bratislava a.s.
KIA Motors Slovakia a.s.
HYUNDAI HMMC
ŠKODA
INA Skalica
PSA PEUGEOT Trnava
Citroen
Ford
Mercedes
Audi
Všetky referencie